新闻动态
原木风: 让家回归自然与本真
2025-03-06

本案背靠市区,面朝乐清湾,在陆地与海湾线的交界中,浮游于舒朗尺度。



客厅开放式布局沙发与餐厅区,制造双洄游的交流场,与家人共聚悠闲。


阳台经地面抬升,自成一片天地。墙体精细测量方格陈列,探寻室中器物与主人心性的契合度。


原木作为流动的介质,通过材质与弧度的递进、延伸,回归其内在力量,温暖了这场诗意的连接。


餐厅与沙发互为递进的开放式关系,同步散射至厨房、书房形成更多维度的交流环境。


餐边柜增设水槽,辅助简单的料理与清洁功能,联动展陈架和厨余收纳系统,打造完整的吧台体系。



书房内保留了三处采光面,尽数吸纳明亮与生机。设计分别在两处窄窗设置了,可自由开合的透气格栅与原木板。




主卧延续舒缓主调,温暖木质与润白肌理互构联系,描摹着低纯度的空间骨架。

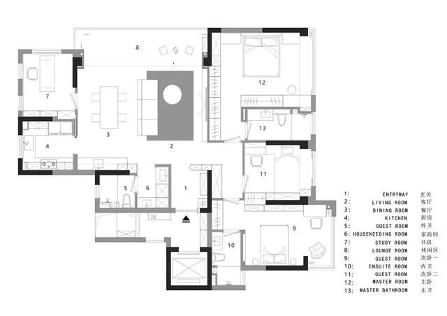
平面图

项目地点|浙江·乐清
设计公司|与上空间设计
项目面积|160平方米
主案设计|邱琼瑶 郑一茜
项目摄影|虞孙平